ID CP2821739

Ap modern 3 camere mansarda mobilat/utilat centrala proprie

Această proprietate nu mai este activă,
te invităm să vizualizezi proprietăți similare

ID CP2821739

75,000 €

Apartament cu 3 camere de vânzare
Berceni, Bucuresti
62 mp
1982

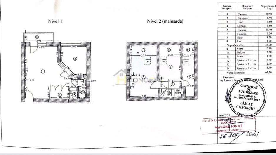
HConcept va propune pentru achizitie un apartament modern, 3 camere, situat la mansarda (et 5/6) unui bloc cu 4 etaje.

Aceast apartament se vinde mobilat/utilat, are centrala proprie, iar compartimentarea este urmatoarea:

- nivel 1: camera (open space), bucatarie inchisa, baie mica, balcon.

- nivel 2: 2 dormitoare (din care unul mai mic si poate fi folosit pentru birou), hol si baie mare (unde este cabina de dus).

In apropiere se gasesc mai multe centre comerciale, parcuri, statii STB. Distanta pana la statia de metrou Aparatorii Patriei este de 10 minute, iar pana la statia de metrou Piata Sudului 15 minute.

https://www.hconcept.ro/

Citește mai mult

  • Tip apartament
    Apartament
  • Compartimentare
    Semidecomandat
  • Număr camere
    3
  • Dormitoare
    2
  • Număr bucătării
    1
  • Număr băi
    2
  • Geam la baie
    Da
  • Etaj
    5, 6
  • Suprafață utilă
    62 mp
  • Suprafață totală
    65 mp
  • Disponibilitate
    Imediat
  • Confort
    1
  • Stare interior
    Finisat modern
  • Număr balcoane
    1
  • Imobil
    Bloc de apart.
  • An construcție
    1982
  • Tip construcție
    Cărămidă
  • Reabilitat termic
    Da
  • Număr etaje clădire
    6
  • Are mansardă
    Da

Facilități

Acoperiș
Aer condiționat
Apă
Aragaz
Bucătărie închisă
Cabină de duș
Calorifere
Canalizare
CATV
Centrală imobil
Contor căldură
Contor electric
Contor gaz
Curent
Dressing
Faianță
Frigider
Gaz
Geamuri termopan
Glet
Hotă
Iluminat stradal
Interfon
Internet
Izolație exterioară
Izolație interioară
Mașină de spălat rufe
Mijloace de transport în comun
Mobilat complet
Parcare deschisă
Parchet
Străzi asfaltate
Telefon
TV
Ușă intrare metal
Uși interior celulare
Vopsea lavabilă
WC Serviciu
Wireless
Necesare:

Site-ul nu poate funcționa corect fără aceste cookie-uri. Vezi cookie-urile

Statistică:

Strângem statistici anonime despre voi, vizitatorii unici, pentru a vă îmbunătăți experiența dumneavoastră. Vezi cookie-urile

Marketing:

Pentru a ne promova mai eficient serviciile noastre, folosim cookies pentru a vă identifica și a vă oferi proprietăți și servicii personalizate. Vezi cookie-urile

Acest site folosește cookies, află detalii. Alege ce tipuri de cookies dorești să permitem: